Langford Rae O'Neill - Property details

Skip to content
New

North View Road, Sevenoaks, TN14 3 bedroom semi-detached bungalow For Sale in Sevenoaks

£525,000

3 bedrooms, 3 bathrooms.


Tenure : Freehold
Council Tax Band : Ask Agent
Estate Fee : Not Set
Building Insurance : Not Set

Property reference: SEH-1JS2152X57X
Print property

Property overview

Introduction

A beautifully presented semi detached bungalow situated in a cul de sac convenient for Bat & Ball station, good local schools and Sainsburys and Aldi superstores.

Description

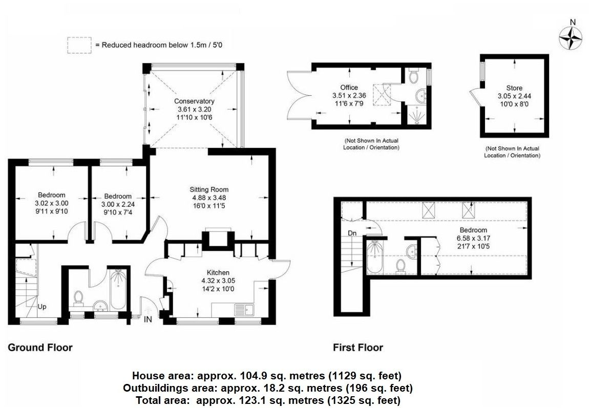
A rare opportunity to purchase a delightful, semi detached bungalow, which is beautifully presented by the current owners. The entrance door leads into the hall, which has parquet flooring, doors off to the principal rooms, staircase to first floor and utility area with space for tumble dryer. The kitchen/breakfast room has work surfaces with a range of cupboards and drawers beneath and wall mounted units above incorporating a stainless steel sink. There is a built in oven with grill over and space for fridge/freezer, additional freezer, dishwasher and washing machine. There is a ceramic hob with extractor hood above, concealed wall mounted boiler and door to side leading out to the driveway. The living room has a feature fireplace with wood burning stove, parquet flooring and opens through to a superb conservatory with sliding patio doors leading out to the garden. There are two bedrooms on the ground floor, both with windows to rear overlooking the garden. The bathroom has suite comprising panelled bath with shower over with rainforest style shower head, low level WC and wash hand basin with vanity cupboards beneath.

To the first floor, off the landing which has a storage cupboard, there is a bedroom with restricted head height and two velux windows to rear. There is a range of built in wardrobes, storage cupboards over eaves and the bedroom opens to an ensuite bathroom with suite comprising bath, low level WC and wash hand basin.

Externally, to the rear, there is a detached studio with laminated wood floor, double doors to the garden, additional skylight window which floods the room with light and door to an ensuite shower room with shower cubicle, low level WC and wash hand basin. The rear garden has an extensive patio area running adjacent to the property, an area of artificial lawn, raised beds and a large garden shed. To the front there are two additional areas of lawn, a pathway leading to the entrance door, driveway providing off road parking and side gate.


Council Tax Band E - £3,132.84 (2026/27).


Directions

From our Sevenoaks office proceed in a northerly direction and at the traffic lights proceed straight on and continue down Dartford Road passing the Vine Cricket Ground on the right hand side. Continue down St John’s Hill to the Bat & Ball junction and turn right at the traffic lights onto Seal Road/A25. Continue along and take the second turning on the right into North View Road and the property will be found after a short distance on the left.

Property data powered by Stand Out Property Manager

Contact the agent

Features

  • Semi Detached Chalet Bungalow
  • Three Bedrooms
  • Three Bath/Shower Rooms
  • Kitchen/Breakfast Room
  • Living Room
  • Conservatory
  • Studio
  • Gardens

Stamp duty estimate

Mortgage calculator

3 bedroom semi-detached bungalow For Sale in Sevenoaks - Photograph 1
3 bedroom semi-detached bungalow For Sale in Sevenoaks - Photograph 2
3 bedroom semi-detached bungalow For Sale in Sevenoaks - Photograph 3
3 bedroom semi-detached bungalow For Sale in Sevenoaks - Photograph 4
3 bedroom semi-detached bungalow For Sale in Sevenoaks - Photograph 5
3 bedroom semi-detached bungalow For Sale in Sevenoaks - Photograph 6
3 bedroom semi-detached bungalow For Sale in Sevenoaks - Photograph 7
3 bedroom semi-detached bungalow For Sale in Sevenoaks - Photograph 8
3 bedroom semi-detached bungalow For Sale in Sevenoaks - Photograph 9
3 bedroom semi-detached bungalow For Sale in Sevenoaks - Photograph 10
3 bedroom semi-detached bungalow For Sale in Sevenoaks - Photograph 11
3 bedroom semi-detached bungalow For Sale in Sevenoaks - Photograph 12

More information

The graph shows the current stated energy efficiency for this property.

The higher the rating the lower your fuel bills are likely to be.

The potential rating shows the effect of undertaking the recommendations in the EPC document.

The average energy efficiency rating for a dwelling in England and Wales is band D (rating 60).

Current rating 62
Potential rating 74
3 bedroom semi-detached bungalow For Sale in Sevenoaks - Floorplan 1

Arrange a viewing

We treat your privacy seriously. We will never sell your information. We will never pass your information on to third parties without your consent, or use it for any reason other than those you allow.